Favorites (0)
Pool & views
Pool & views
Pool & views
Pool & views
Pool & views
Pool & views
Pool & views
Pool & views
Pool & views
Pool & views
Pool & views
Pool & views
Pool & views
Pool & views
Pool & views
Pool & views
Ref: 691419

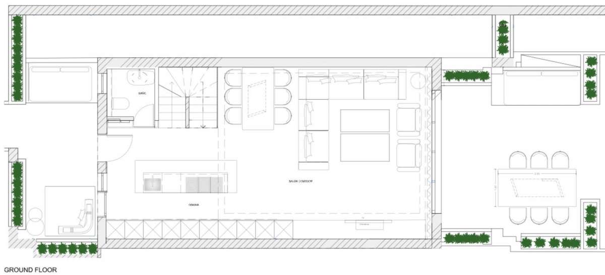
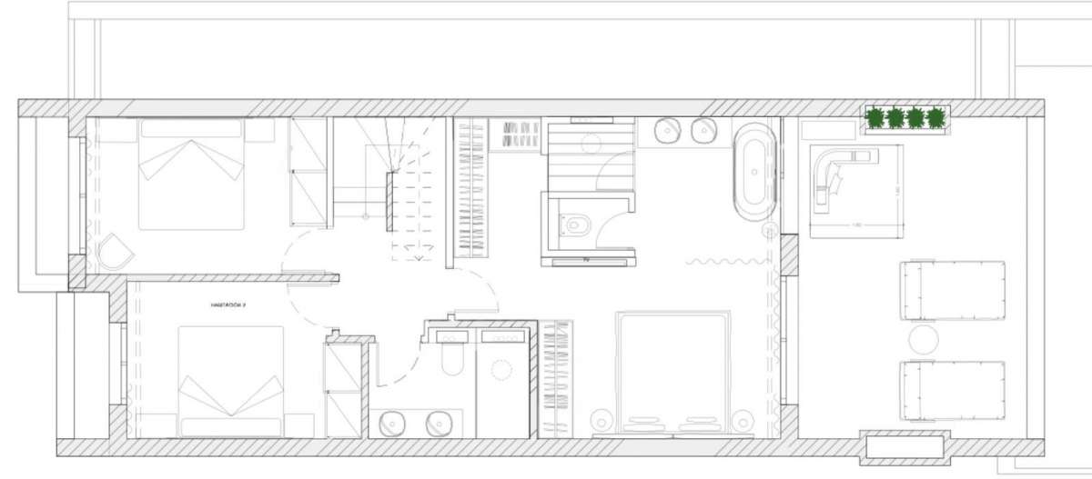
Semi-detached house in Golden Mile

  • 4 Bedrooms
  • 3 Bathrooms
  • 280 m² Built
  • -
  • -
  • Garden

2,395,000 €

Description

Exclusive townhouse in the Golden Mile, located in the prestigious Monte Marbella Club, in Lomas de Puente Romano. Fully renovated with high-quality materials and elegant design, this property features 4 spacious bedrooms, 3 bathrooms, and a guest toilet. Large windows provide abundant natural light, a 70 m² terrace offers outdoor space, and the home is set in a peaceful environment just minutes from all amenities. Built in 2005 and renovated on 2025 it boasts 283 m² of living space and private parking for two cars. Secure gated community. Community fee: €450/month.

Features

  • House
  • Golden Mile
  • Bargain
  • Investment
  • Town
  • Beachside
  • Close to shops
  • Close to sea
  • Close to town
  • Close to schools
  • Urbanisation
  • Mountain views
  • Garden
  • Urban
  • Excellent condition
  • Kitchen: Fully fitted
  • Electricity
  • Potable water
  • Gated complex
  • Fully furnished
  • Air conditioning
  • Underground parking
  • Private garden
  • Communal pool
  • Covered terrace
  • Fitted wardrobes
  • Close to transport
  • Private terrace
  • Solarium
  • Double glazing

Location

Similar properties

Contact Us

;